티스토리 뷰

안녕하세요.
제르마나입니다.
이번에 저희 사무실에 피난안내도를 부착해보려고 하는데,
여기저기 알아보니 비용이 개당 4~9만원 들더라고요.
사무실 한 군데에만 부착해도 4만원돈인데 잘 보이게 두 개 부착하려니까
거의 10만원에 가까운 비용이 나가버리니..
저는 또 이게 아깝쥬 ㅎㅎㅎ
그래서 오늘은 피난안내도를 셀프 제작 만들어 보았습니다.
저는 나름 재미있었던 작업이라 공유드려볼게요~
그전에 피난안내도 설치 의무에 대해서 잠깐 알아보자면,
영화관, 대형판매시설 등 다중이용업소는 법적으로 피난안내도 설치가 의무화되어있습니다. 하지만 저희 같은 일반 사무실 용도의 건물에는 의무가 아니어서 미부착된 곳들이 많은데 어떤 재난상황이 있을지 모르니 해두는 게 좋겠죠~
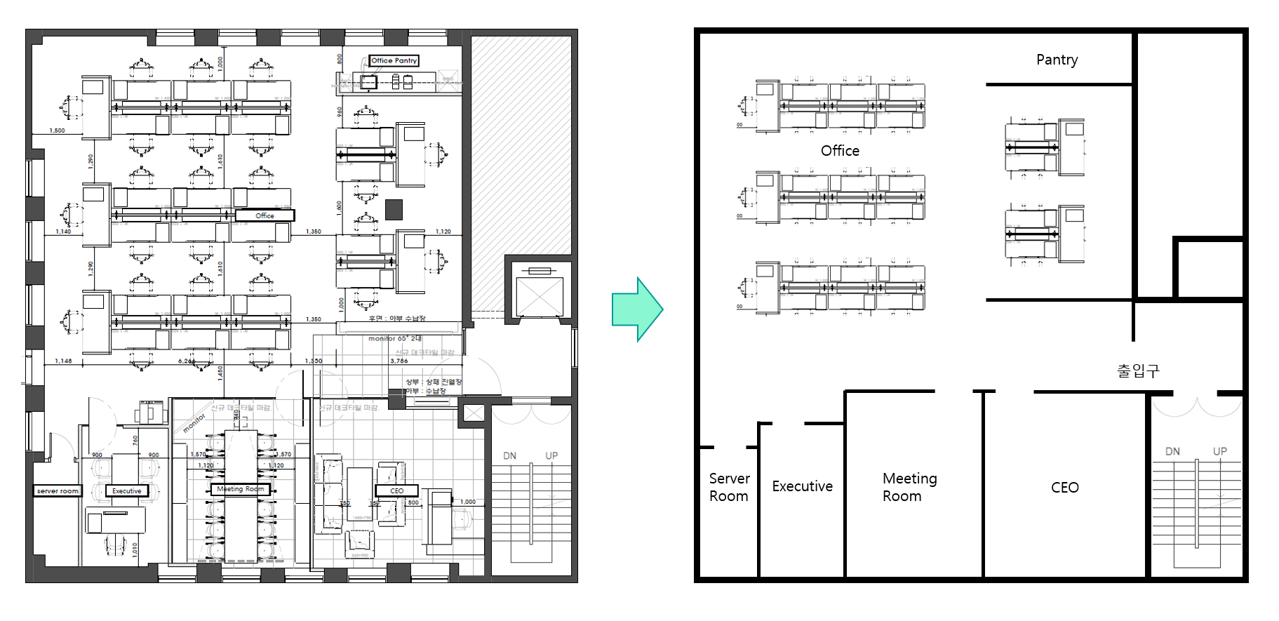
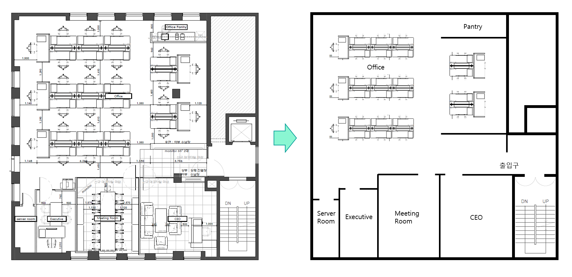
피난안내도를 만들기 위해 제일 먼저 필요한것은 사무실 도면입니다. 다행히 저는 인테리어 하면서 업체한테 받아둔 게 있어서 굳이 건물 관리실에 연락할 필요는 없었습니다.
일단 복잡한 인테리어 도면을 아주 심플하게 바꾸어 주었습니다. 짠~

그 다음 비상구가 어느 쪽인지, 소화기와 발신기 위치는 어디인지 파악을 해두었습니다. 소화기는 총 4개 있더라고요.
그리고 저희 사무실 인테리어가 화이트&그레이 컨셉인데 인터넷에 피난대피도 검색을 해보면 빨간색 노란색 위주라 적당한 샘플 양식을 골라와서 튀지 않게 수정해 보습니다.

심플하게 만든 도면위에 비상구, 소화기 등 아이콘을 넣어 피난안내도용 도면이 완성되었습니다.
왼쪽과 오른쪽의 안내도는 색감 하나 차이인데 느낌이 많이 다르죠~?
전 아주 만족스럽습니다. ㅎㅎ
피난안내도 의무 설치 시 B4나 A3사이즈로 출력해야 하는데,
저희는 의무 업종이 아니라 A4로 뽑아 코팅해서 붙일 예정이었습니다.... 만....
출력이 자동으로 A3 사이즈로 나오는 바람에 A3 사이즈로 하려고 합니다. ㅎㅎ

그럼 이제 코팅하러 문구점 고고~ 회사 근처 문구점에서 A3 사이즈 코팅하여 비용은 개당 1400원 들었네요.
짠!! 완성하여 부착한 모습입니다.

안내도에서 현 위치로 설정한 곳에 부착하면 끝! 직원들에게 한 번 더 상기시켜 줄 수 있는 기회가 된 것 같아 뭔가 뿌듯하네요.
피난안내도 제작 어렵지 않으니 피난안내도가 없는 사업장에서는 의무가 아니더라도 피난안내도를 부착하는 것을 권장드립니다.
그럼 오늘 포스팅은 여기서 마칠게요.
오늘도 안전한 하루 보내세요 :)
도움이 되었으면 공감버튼과 구독설정 부탁드립니다!

'◑ 일하는 story' 카테고리의 다른 글
| [경영지원] 중소기업확인서 갱신발급 (0) | 2023.04.07 |
|---|---|
| [법정의무교육] 산업안전보건교육 대상자 확인 방법 (0) | 2023.03.07 |
| [경영지원/서식] CCTV 설치 및 안내 표지판 양식 (0) | 2023.02.09 |
| 취업규칙 신고방법 (0) | 2023.01.02 |
| [인사/노무서식] 휴직 신청서 양식 (육아휴직, 무급휴직, 병가 등) (0) | 2022.12.01 |